Leistungen

  • Aufmaß
  • Planung
  • Visualisierung

Kirche

Amt Neuhausen / Spree – 2008

 

Zurück

Hausprojekte

Badezimmer Bild

Küche
Privater Auftraggeber – Berlin – 2014

Badezimmer Bild

Küche
Privater Auftraggeber – Kathlow – 2014

Badezimmer Bild

Badezimmer
Privater Auftraggeber – Berlin – 2014

Badezimmer Bild

Küche
Privater Auftraggeber – Berlin – 2013

Paravent Bild

Paravent 
Ristorante Peppone – Berlin – 2013

Gebäudekonzept Bild

Gebäudekonzept
Wiener Strudelmanufaktur – Berlin – 2010

Backofen Bild

Backofen
Privater Auftraggeber – Kathlow – 2009

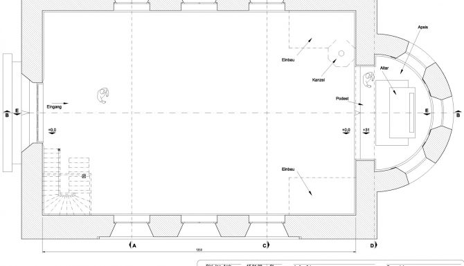
Kirche Bild

Kirche
Amt Neuhausen / Spree – 2008

Dachgeschoss  Bild

Dachgeschoss 
Privater Auftraggeber – Strausberg – 2006